НАДЁЖНЫЕ МОДУЛЬНЫЕ ДОМА ПОД КЛЮЧ 
С фиксированной ценой и сроком 1 месяц!

НАДЁЖНЫЕ МОДУЛЬНЫЕ ДОМА ПОД КЛЮЧ 
С фиксированной ценой и сроком 1 месяц!

Звоните,
сейчас работаем

Звоните, сейчас работаем

8 (923) 703-39-00

8 (923) 703-39-00

МодульныЙ дом 125м2

Дом из новой линейки модульных домов.
Больше пространства для комфорта всей семьи.

Задать вопрос online

Планировки и цены

С ЧЕТЫРЬМЯ СПАЛЬНЯМИ

С САУНОЙ

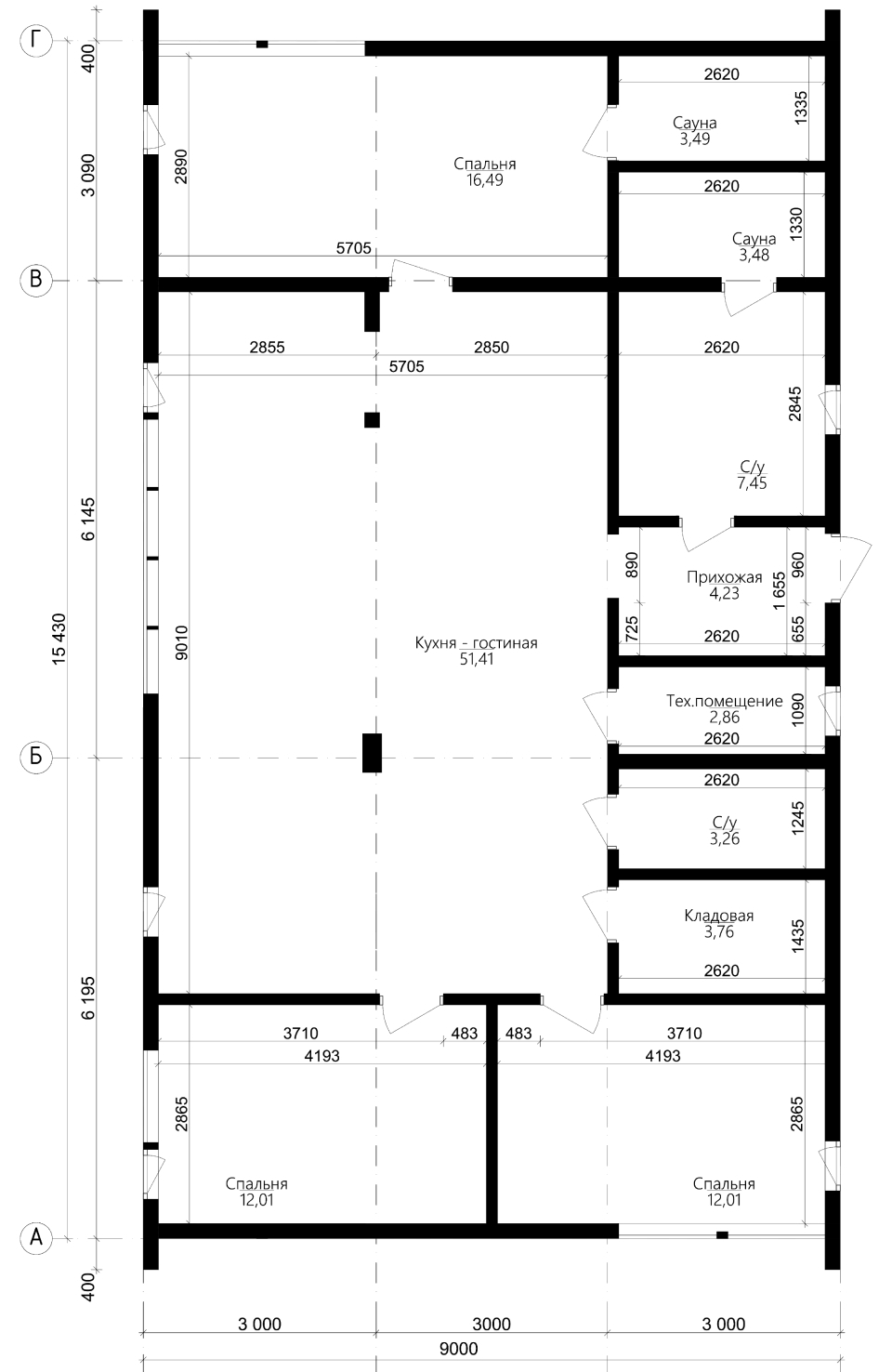
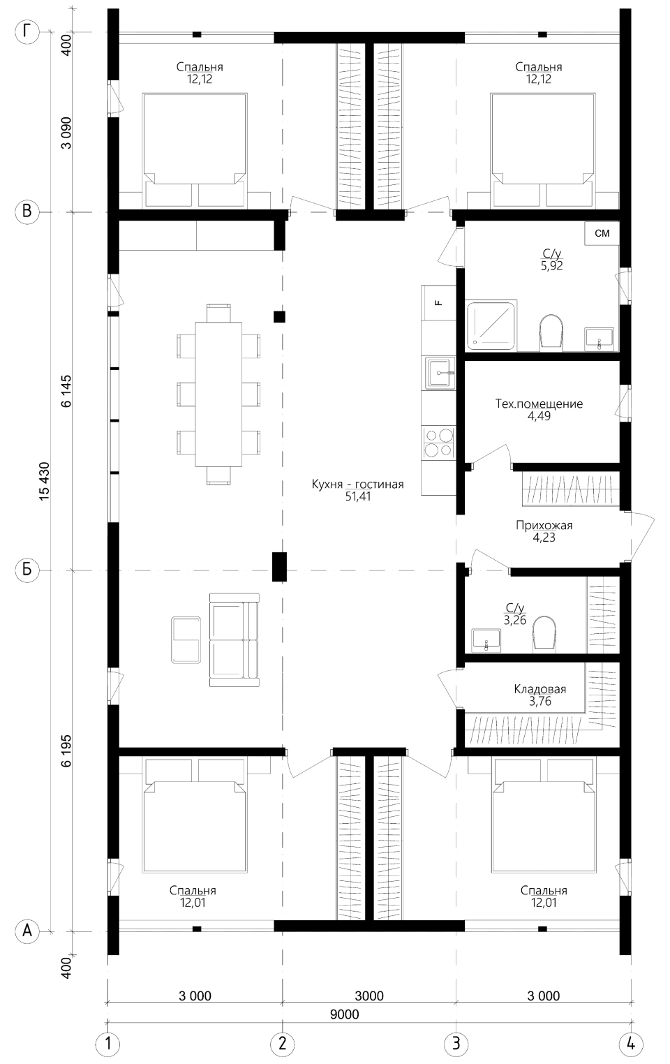
Модульный дом 125 4с-1
четыре спальни, прихожая, два с/у, тех.помещение, кладовая и большая кухня-гостиная
12.160.000

Площадь застройки: 139 м²

Полезная площадь дома - 125 м²

Габариты дома (ВхШхД) - 3,2х9х15

Высота потолков - 2.1-3,05м

Модульный дом 125 4с-2
четыре спальни, прихожая, два с/у, тех.помещение, кладовая и большая кухня-гостиная
12.160.000

Площадь застройки: 139 м²

Полезная площадь дома - 125 м²

Габариты дома (ВхШхД) - 3,2х9х15

Высота потолков - 2.1-3,05м

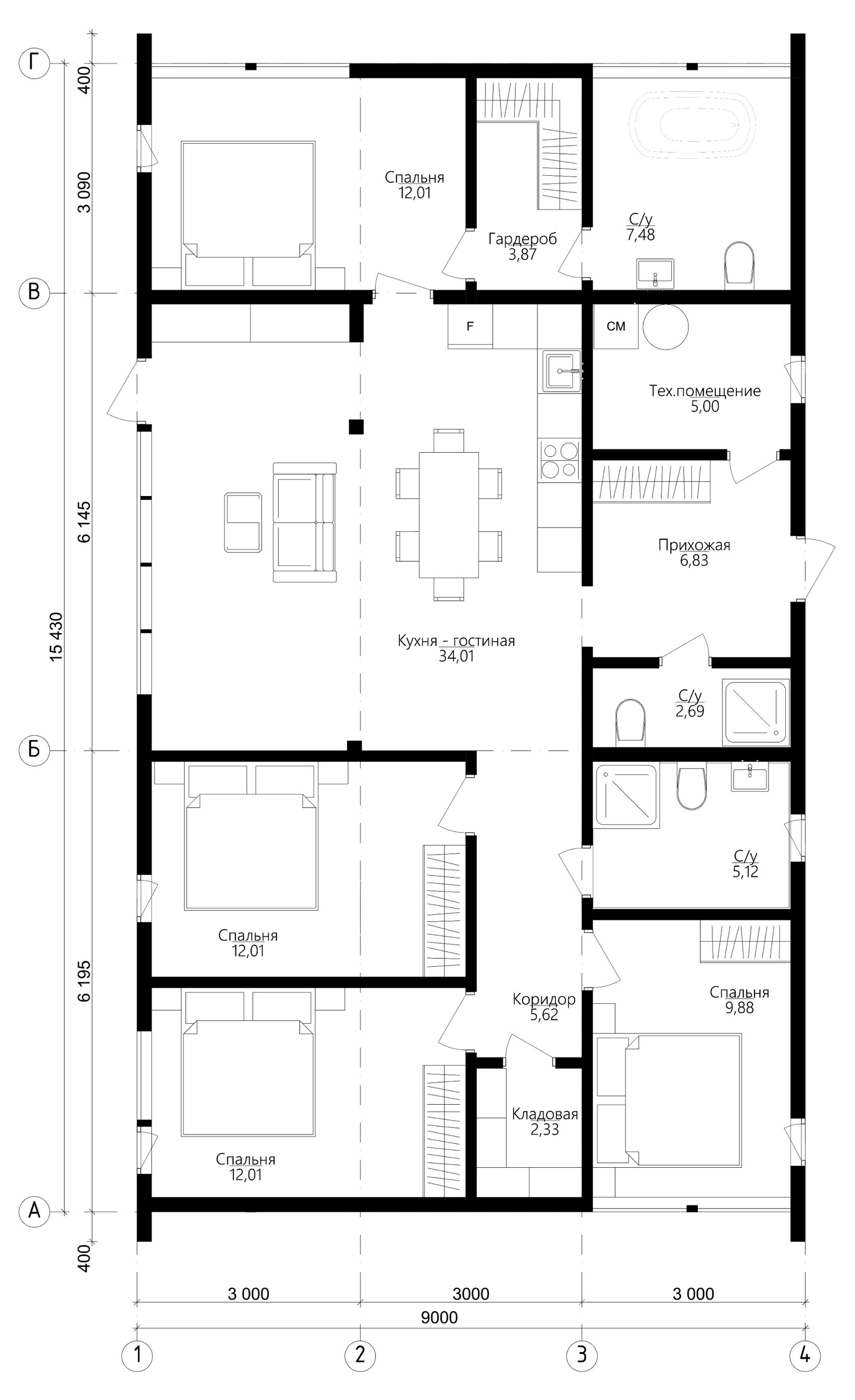
Модульный дом 125 4с-3
четыре спальни, прихожая, три с/у, тех.помещение, кладовая, гардероб и большая кухня-гостиная
12.290.000

Площадь застройки: 139 м²

Полезная площадь дома - 125 м²

Габариты дома (ВхШхД) - 3,2х9х15

Высота потолков - 2.1-3,05м

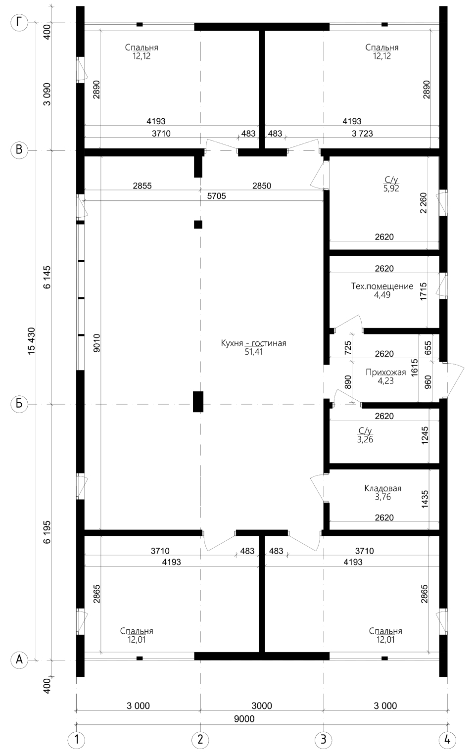
Модульный дом 125 3с+1c
три спальни, прихожая, два с/у, тех.помещение, кладовая, сауна и большая кухня-гостиная
12.350.000

Площадь застройки: 139 м²

Полезная площадь дома - 125 м²

Габариты дома (ВхШхД) - 3,2х9х15

Высота потолков - 2.1-3,05м

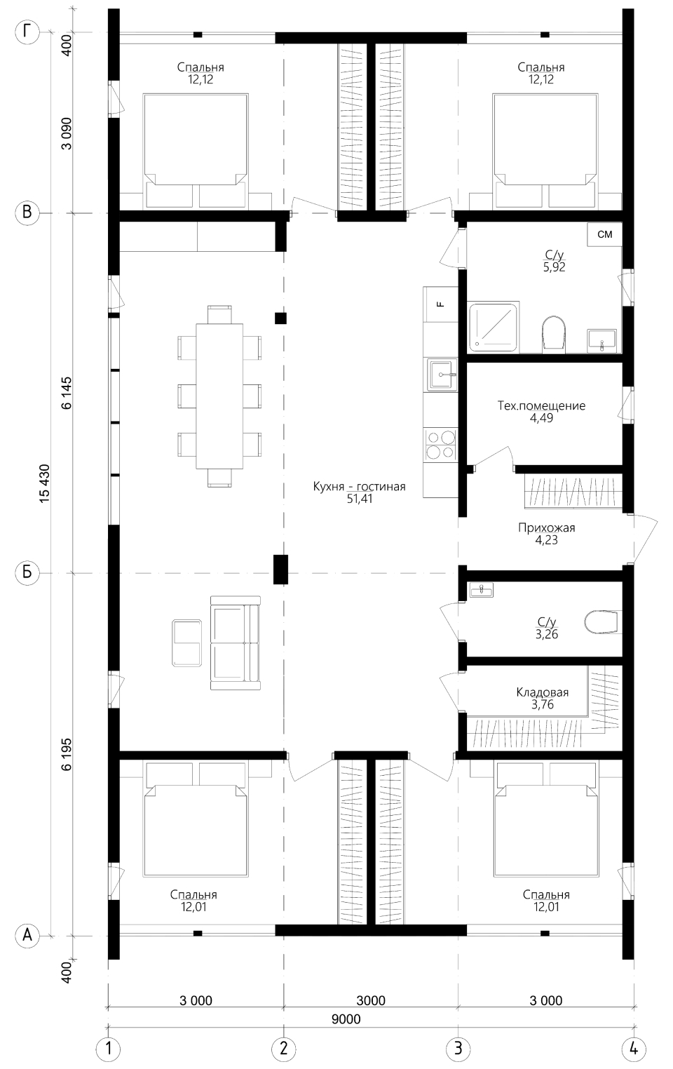
Модульный дом 125 4с+1c
три спальни, прихожая, два с/у, тех.помещение, кладовая, сауна, гардеробная и большая кухня-гостиная
12.420.000

Площадь застройки: 139 м²

Полезная площадь дома - 125 м²

Габариты дома (ВхШхД) - 3,2х9х15

Высота потолков - 2.1-3,05м

ЧТО ВХОДИТ В СТОИМОСТЬ

ВХОДИТ:

• Дом
• Крытая терраса и лестница на террасу
• Сборка дома на участке

Состав дома:
• Каркас из сухой строганой доски, сорт АБ, 45х145 45х195мм
• Утепление ватой Knauf insulation Проф 037 Aquastatik: 200 мм пол, 150 мм стены и кровля

Окна и двери:
• Двухкамерные стеклопакеты с i напылением
• Деревянные двери и окна с двухкамерными стеклопакетами, поворотно-откидные
• Межкомнатные финские двери белые

Чистовая внутренняя и наружная отделка:
• Имитация бруса на стенах и потолке
• Торцевые стены строганая доска 20x195
• Ламинат на полу
• СУ керамогранит в комбинации с имитатором бруса

Коммуникации, санузел:
• Вся электрика: светильники, розетки, выключатели, электрощиток с автоматами
• Разводка труб водопровода, канализации
• Приточно-вытяжная вентиляция в каждой комнате
• Унитаз, раковина, душ и бойлер 80 литров
• Смесители
• Электрический тёплый пол в санузле

Закажите расчет
заполнив форму

Ширина ангара
Длина ангара
ВЫСОТА АНГАРА
НАЗНАЧЕНИЕ АНГАРА
 
Имя
Номер телефона *
Нажимая кнопку, вы даете согласие на обработку персональных данных

Основные дополнительные опции

Дополнительные
боковые/задние террасы

Печь-камин
Неман Мета

Ограждение
цоколя

Садовое
кресло

Теплый пол
под ламинат

Ограждение
для веранды/перила
для лестницы

Помимо основных дополнительных опций, у нас также имеется более 80 дополнительных вариантов для вашего выбора. Разнообразие дополнительных возможностей позволит вам настроить ваш дом идеально под свои индивидуальные потребности и желания. Создайте свое уникальное пространство, которое будет полностью отвечать вашим требованиям.

Ключевые особенности новой серии

  • Боковые модули стали на пол метра шире, увеличив площадь помещений и вариативность планировочных решений.
  • Утепление по кругу 200 мм, пол, стены и потолок.
  • Увеличенное внутреннее пространство — высота потолка в нижней точке в интерьере 2,1 метра, в коньке 3,05 метра.
  • Немного изменилась схема расстекловки, стеклопакеты увеличенной площади.
  • Сан. узел с инсталляцией.

надёжные МОДУЛЬНЫЕ ДОМА ПОД КЛЮЧ 
С фиксированной ценой и сроком 1 месяц!

НАДЁЖНЫЕ МОДУЛЬНЫЕ ДОМА ПОД КЛЮЧ 
С фиксированной ценой и сроком 1 месяц!

ИНН 220100803546
ОГРНИП 318547600124943
Директор Генке Вячеслав Анатольевич

Индекс 633208, Новосибирская область, г. Искитим, мкр Южный, д. 14 офис 8 

ИНН 220100803546
ОГРНИП 318547600124943
Директор Генке Вячеслав Анатольевич