НАДЁЖНЫЕ МОДУЛЬНЫЕ ДОМА ПОД КЛЮЧ 
С фиксированной ценой и сроком 1 месяц!

НАДЁЖНЫЕ МОДУЛЬНЫЕ ДОМА ПОД КЛЮЧ 
С фиксированной ценой и сроком 1 месяц!

Звоните,
сейчас работаем

Звоните, сейчас работаем

8 (923) 703-39-00

8 (923) 703-39-00

Дома для базы отдыха

С отделкой под ключ

Задать вопрос online

Проекты и цены домов под сдачу в аренду

Мы отобрали для вас самые популярные планировки, которые выбирают другие туристические базы и кемпинги

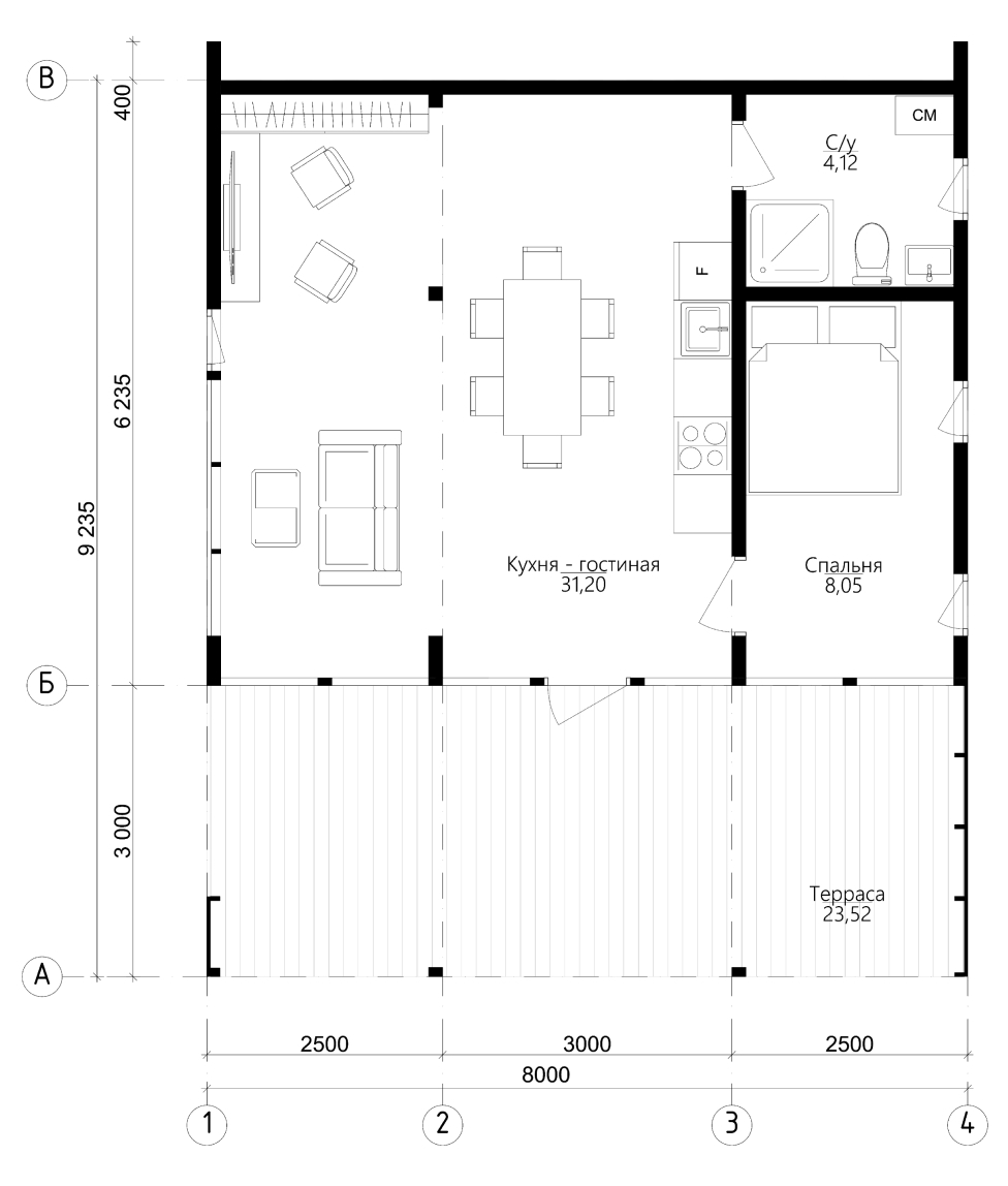
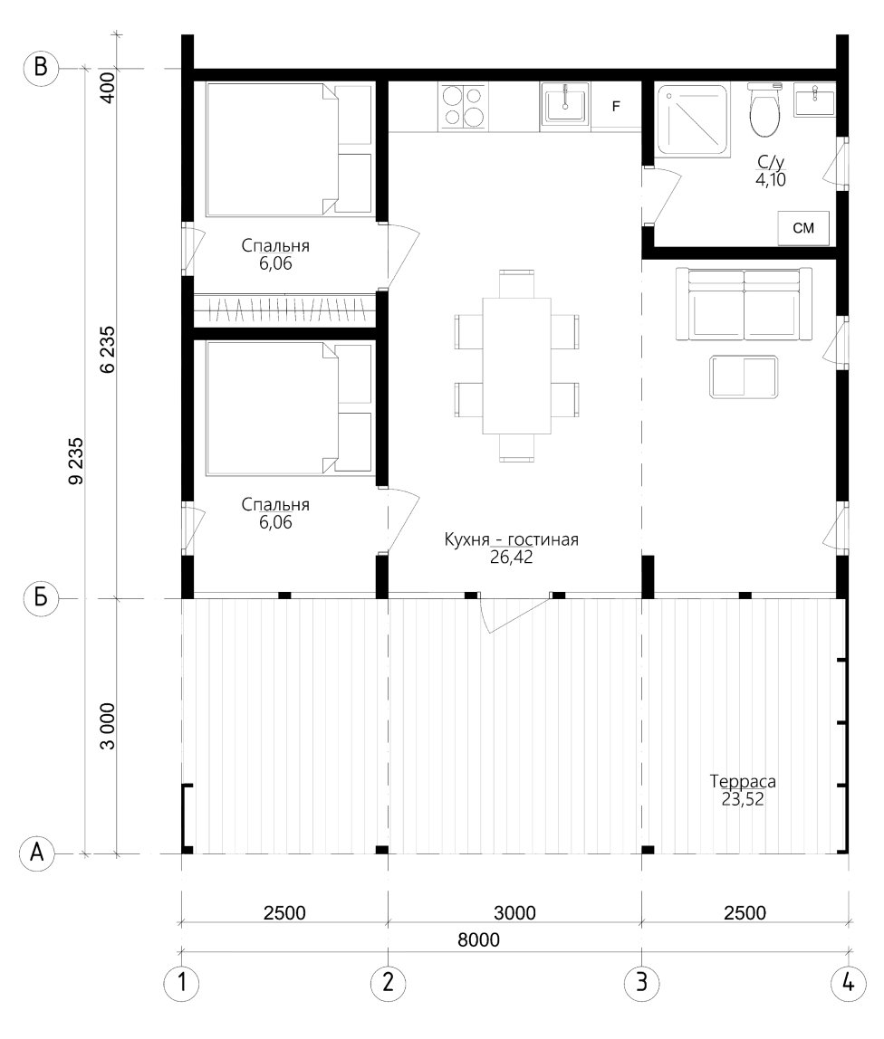
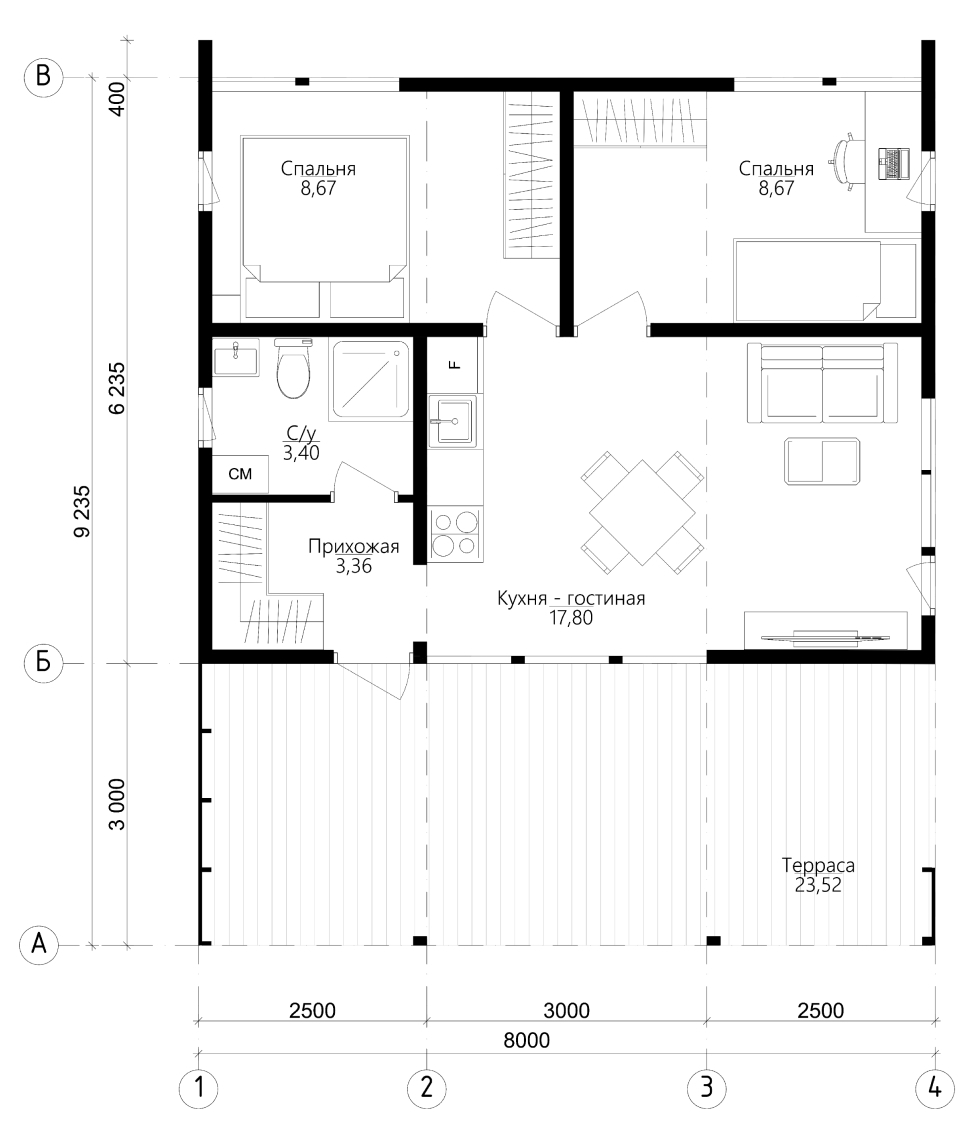
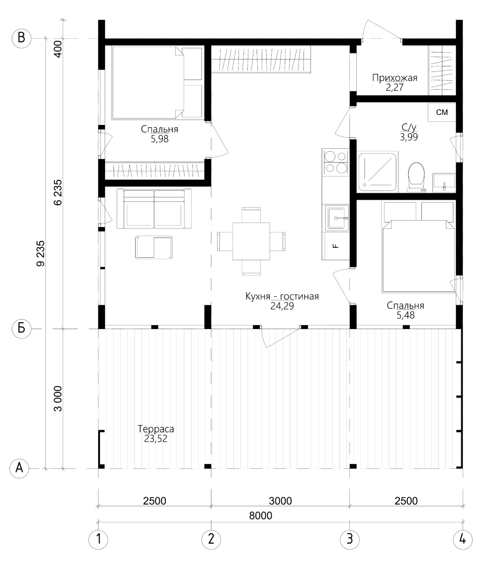
Модульный дом 43м²

Дом для круглогодичного проживания. Рассчитан на 2-5 человек. В доме 1 или 2 спальные комнаты, кухня-гостиная и санузел. Есть планировка с сауной.

Стоимость дома с полной отделкой: от 4 570 000 ₽ 5 350 000 ₽

Площадь застройки - 72 м²

Габариты дома (ВхШхД) - 3,2х8х9

Полезная площадь дома - 43 м²

Площадь крытой террасы - 24 м²

Высота потолков - 1.85 - 3 м

Модульный дом 31м²

Дом для круглогодичного проживания. Рассчитан на 2-4 человек. В доме 1 спальня, кухня-гостиная и санузел. Есть планировка с сауной.

Стоимость дома с полной отделкой: от 3 560 000 ₽ 4 100 000 ₽

Полезная площадь дома - 31 м²

Площадь веранды - 15 м²

Высота потолков - 2.1-3,05м

Микро дом

Дом для глэмпинга. Рассчитан на 1-2 человек. В доме есть свой санузел с душем.

Стоимость дома с полной отделкой: от 1 490 000 ₽ 1 680 000 ₽

Полезная площадь дома - 13 м²

Высота потолков - 2.1-2,7м

Закажите расчет
заполнив форму

Ширина ангара
Длина ангара
ВЫСОТА АНГАРА
НАЗНАЧЕНИЕ АНГАРА
 
Имя
Номер телефона *
Нажимая кнопку, вы даете согласие на обработку персональных данных

С каждым годом популярность глэмпинга и баз отдыха продолжает расти, и с ними растет и спрос на уникальные дома, созданные специально для проживания в этих курортных комплексах. Если вы хотите удивить своих гостей и предложить им незабываемый отдых, необходимо обратить внимание на строительство домов для глэмпинга и баз отдыха от компании МОДУЛЛЕС.

Одним из самых важных факторов, определяющих успех глэмпинга и баз отдыха, является выбор домов. Ведь именно они создают атмосферу уединения и комфорта, в которой гости будут наслаждаться отдыхом и экскурсиями на природу. Поэтому строительство домов для баз отдыха является критической задачей, требующей внимания к каждой детали.

Когда дело доходит до строительства домов для глэмпинга и баз отдыха, важно учесть несколько ключевых факторов. Во-первых, уют и комфорт должны быть в центре внимания. Гости, приезжающие на базы отдыха, хотят наслаждаться прекрасными видами и природной красотой, но им также важны удобные кровати, чистые ванные комнаты и кухня с современным оборудованием.

Во-вторых, дома для глэмпинга должны быть экологически чистыми и энергоэффективными. Необходимо строить и оборудовать их с использованием эко-материалов и технологий, чтобы минимизировать воздействие на окружающую среду и создать уникальную атмосферу взаимодействия с природой.

Наконец, важно учитывать индивидуальные особенности и предпочтения гостей при проектировании домов для глэмпинга. У каждого гостя свои уникальные ожидания и потребности, поэтому важно предложить различные варианты размещения - от романтических бунгало до семейных вилл. Также следует обеспечить гостям возможность наслаждаться разнообразными видами активного отдыха, предлагаемыми на базе отдыха.

Наша команда поможет вам реализовать все задуманные идеи!


надёжные МОДУЛЬНЫЕ ДОМА ПОД КЛЮЧ 
С фиксированной ценой и сроком 1 месяц!

НАДЁЖНЫЕ МОДУЛЬНЫЕ ДОМА ПОД КЛЮЧ 
С фиксированной ценой и сроком 1 месяц!

ИНН 220100803546
ОГРНИП 318547600124943
Директор Генке Вячеслав Анатольевич

Индекс 633208, Новосибирская область, г. Искитим, мкр Южный, д. 14 офис 8 

ИНН 220100803546
ОГРНИП 318547600124943
Директор Генке Вячеслав Анатольевич